Craig Hyne 0448 825 833

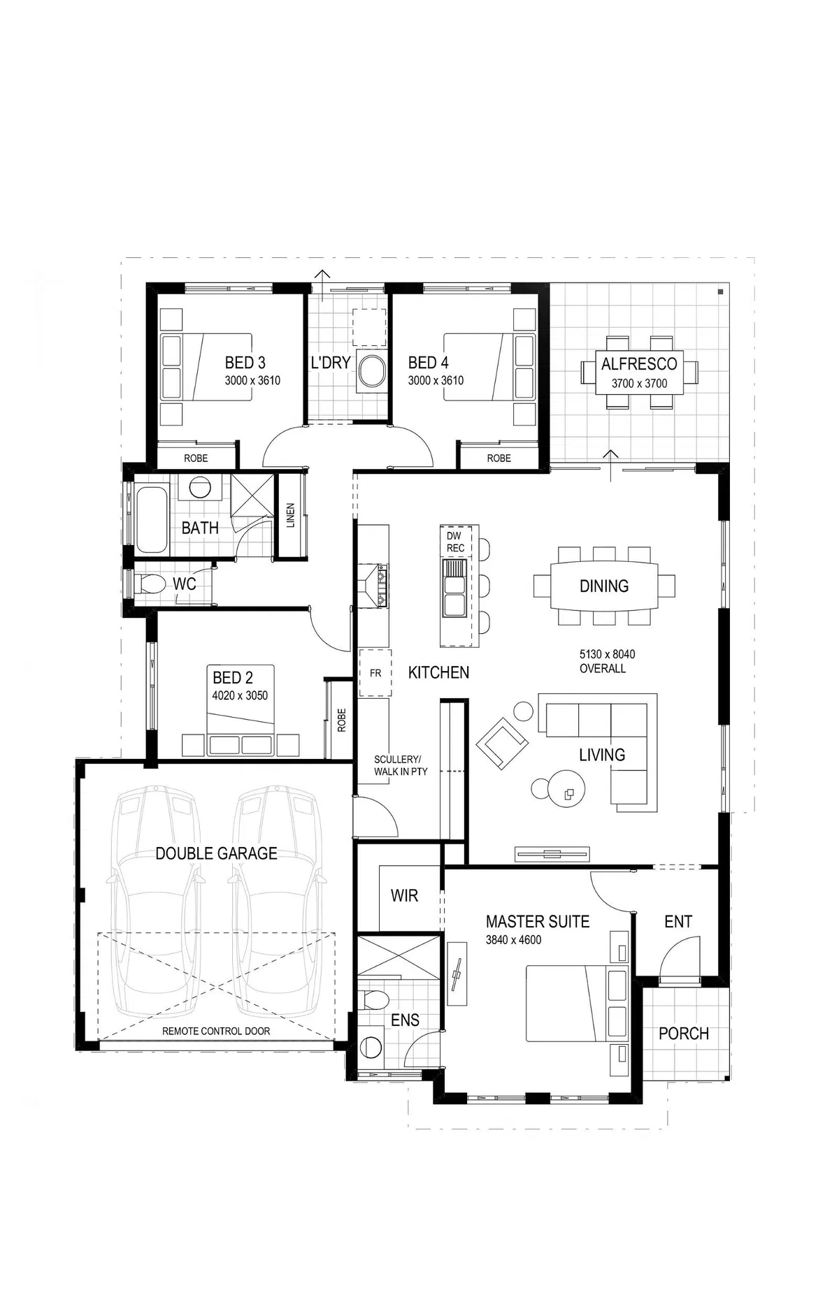
The Corindi Traditional

House & land packages starting

FROM $786,700*

4
2
2

Suitable for 15m Lots

The Corindi presents a classic rural home with the modern family in mind.

Register Your Interest