House & land packages starting
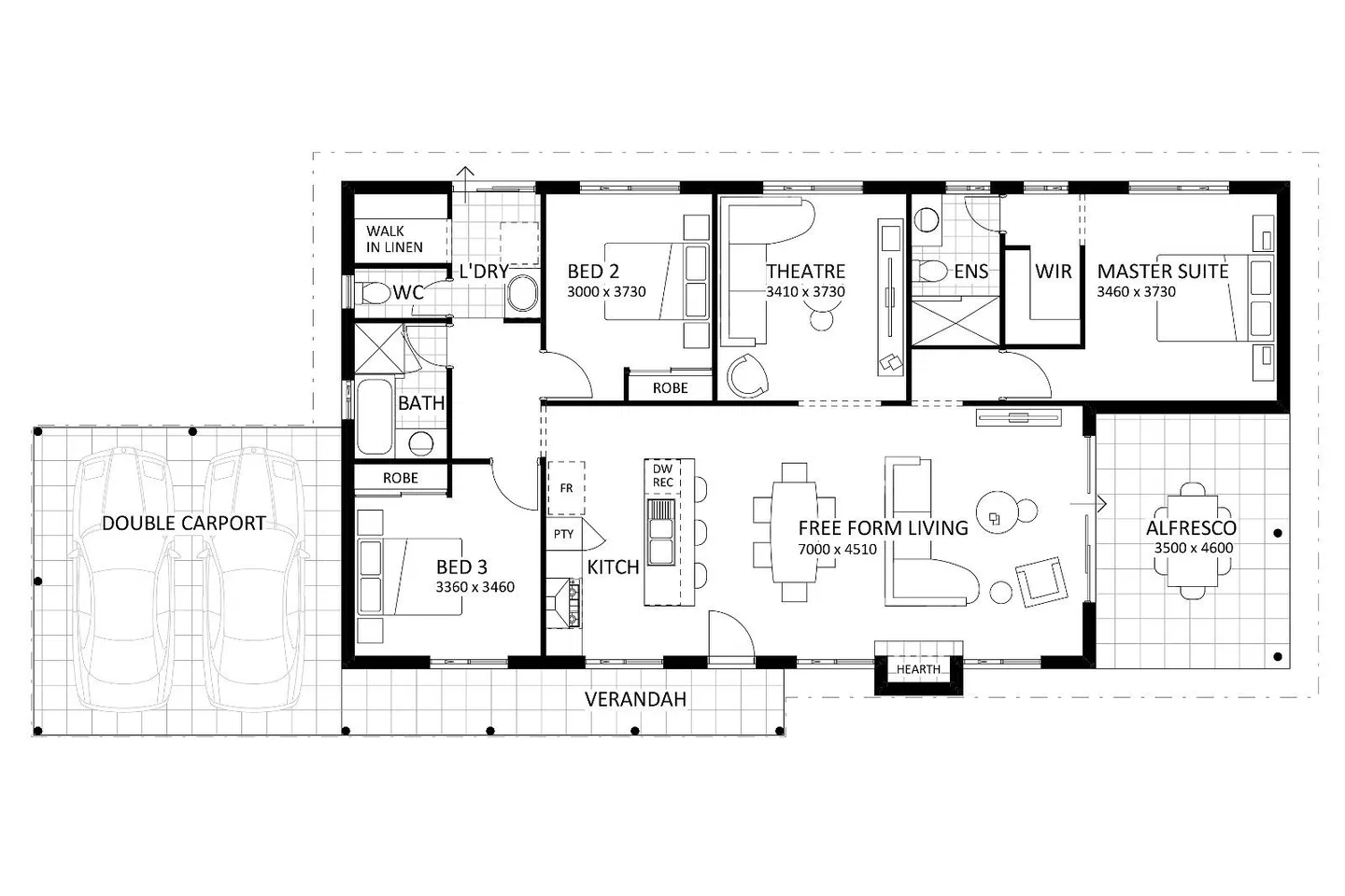
2 The verandah to the front and the generous alfresco at the side, give you the perfect areas to take in the views of your natural surroundings. A beautiful modern family residence graced by an awe-inspiring front elevation adorned with the warm embrace of timber poles and the enduring charm of brick veneer.
